Trigger
Skip to main content
Products
Home Connect®
Owner Support
Trade Resources
Where to Buy
...
T24UW900LP
Product is no longer available
More information and services related to this product
1 / 0
...
T24UW900LP
Product is no longer available
More information and services related to this product
...
T24UW900LP
Product is no longer available
More information and services related to this product
Technical Overview
Overall Appliance Dimensions (HxWxD) (in)
34 1/4'' x 23 7/8'' x 24''
Wine Bottle Storage Capacity
41
More Information
Highlights
Star-K certified
SoftClose® doors for a smooth close
Dual zone wine storage
Full-extension wine racks
UV resistant tempered glass door
Specifications
Search specifications
General
Size and Weight
Connectivity
Manual and Documents
User manuals
Product Specification Sheet
Installation Instruction
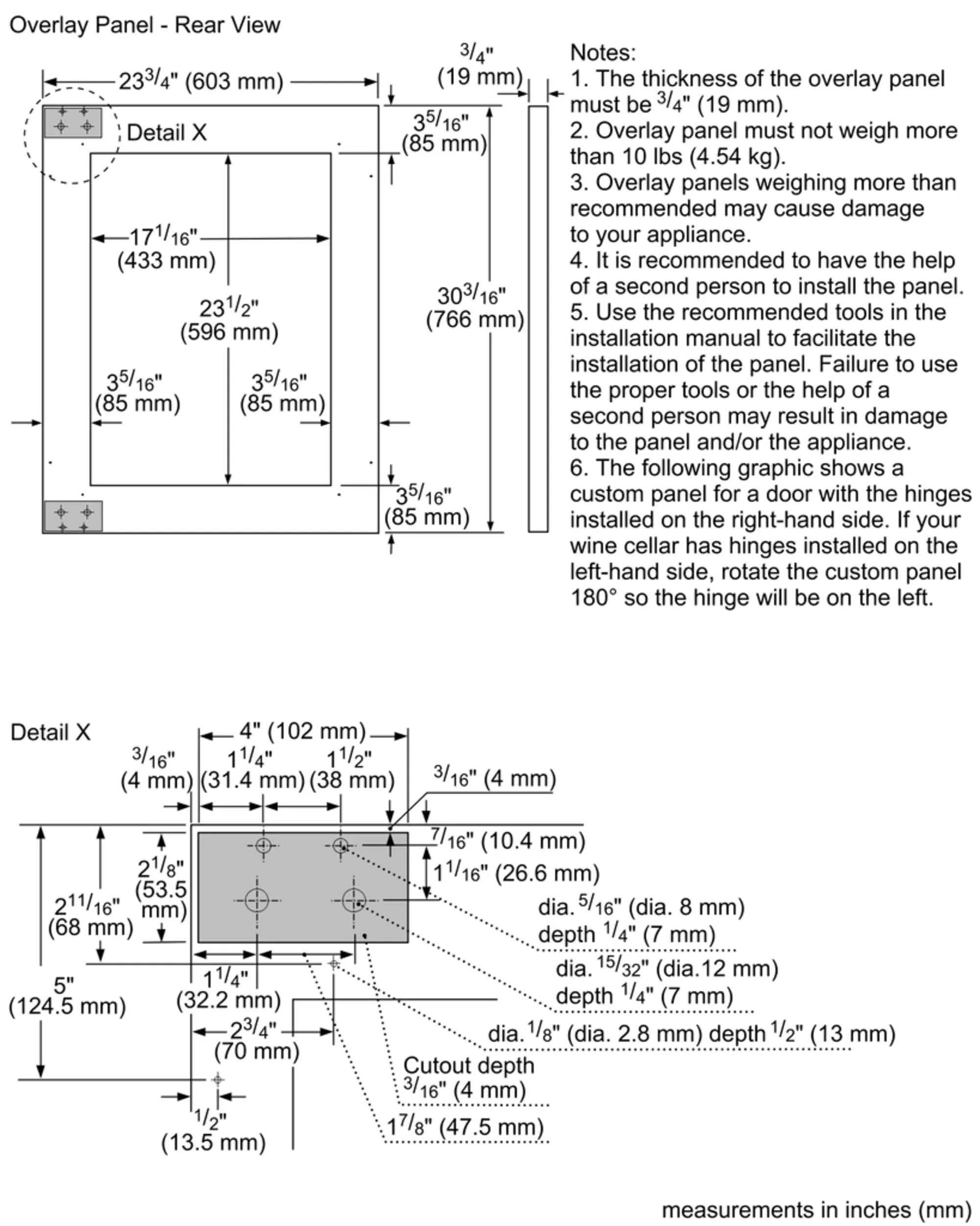
Supplement
CAD File
Helpful Links
View FAQs & Support
View Kitchen Design & Planning Guide
AB-1200 and Other Product Disclosures
Cleaning & Care